BAD ISCHL- Exquisites Wohnen - Top 2
Beschreibung
OPTIMAL FÜR ÄLTERE PERSONEN DIE SICH VERKLEINERN WOLLEN UND BARRIEREFREIHEIT SUCHEN IN BESTER INFRASTRUKTUR
NUR 10 MIN ZU FUß INS ZENTRUM
Hier werden Sie pure Lebensfreude spüren.
Bei diesem ansprechenden Projekt werden eine Gartenwohnung-, Terrassen- und Penthousewohnungen in sehr schöner und begehrter Lage errichtet.
Aus dem bestehenden Gebäude entstehen 8 neue Wohneinheiten.
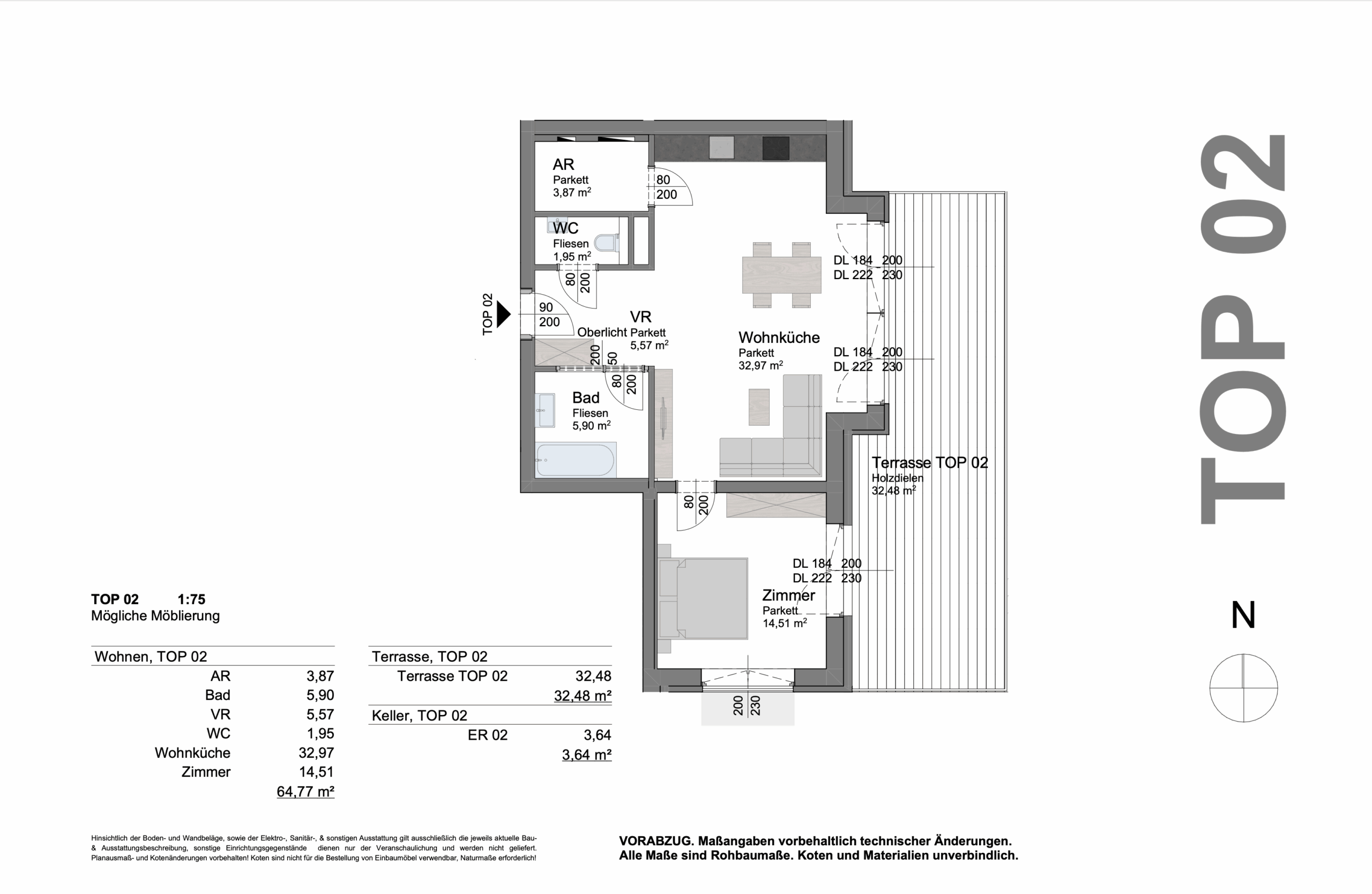
Von 52 m² bis 80 m² wird der passende Wohnraum für jeden Wunsch und Lebensabschnitt geschaffen – egal ob für Singles, Paare oder Familien.
Alle Wohnungen überzeugen durch lichtdurchflutetes Raumklima.
Die Zweizimmerwohnungen sind perfekt für ein bis zwei Personen.
Erhabene Penthousewohnungen mit großzügigen Terrassen.
Eine perfekte Kombination aus ruhiger und ländlicher Umgebung und Nähe zu Nahversorgern und öffentlichen Verkehrsmitteln.










