EGGENDORF - Villa Noctis
VERKAUFT
Diese einzigartige Villa vereint herausragende Architektur mit modernem Luxus in einer ruhigen Siedlungslage. Die Kombination aus Holz, dunklen Materialien und hochwertigen Ausstattungsdetails macht dieses Haus zu einem außergewöhnlichen Zuhause.
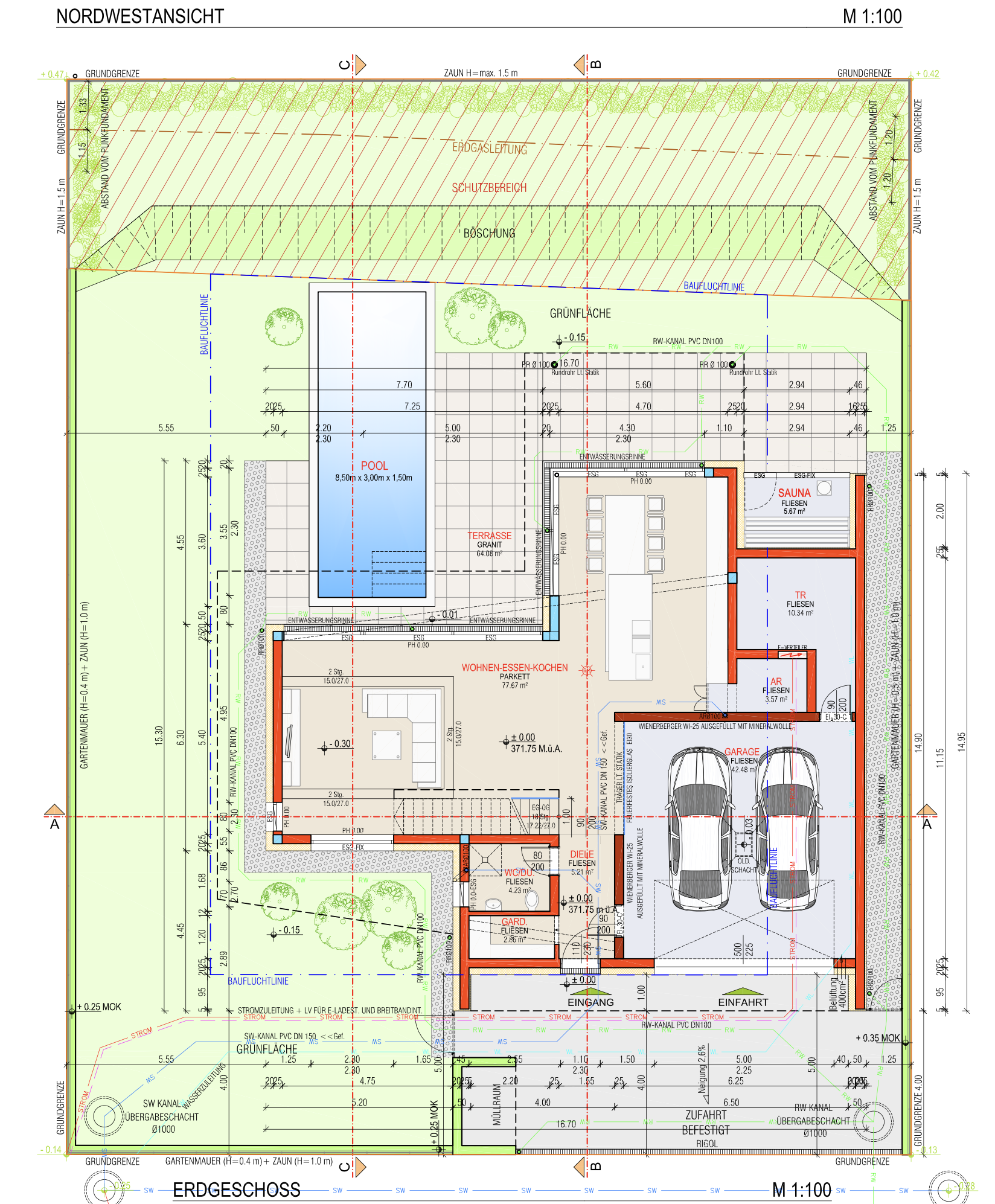
Bereits beim Betreten des Hauses werden Sie von einem besonderen Highlight begrüßt: Ein großes Glaselement im Eingangsbereich ermöglicht den Blick in die stilvolle Garage – perfekt, um Ihr Lieblingsauto oder Motorrad in Szene zu setzen.
Der beeindruckende Wohnbereich mit einem leicht abgesenkten Fernsehbereich lädt zum Verweilen ein. Die vollausgestattete, moderne und dunkel gehaltene Küche mit Kücheninsel ist ein wahres Designerstück, ergänzt durch einen angeschlossenen Esstisch und einen nahtlos integrierten Abstellraum. Große Fensterfronten und Schiebeelemente öffnen den Wohn- und Küchenbereich zur Terrasse und sorgen für eine lichtdurchflutete Atmosphäre. Ein elegantes Gäste-WC und die Garderobe runden das Erdgeschoss ab.
Im gesamten Haus finden sich hochwertige Bodenbeläge – edler Parkett und großformatige Fliesen und wo benötigt, wurde eine Akustik-Decke integriert, was zusammen eine stilvolle und behagliche Atmosphäre schafft.
Die beeindruckende Holztreppe führt Sie in den ersten Stock, wo das Master-Schlafzimmer mit angeschlossenem Luxusbad wartet. Die freistehende Badewanne, die großzügige Doppeldusche und das breite Waschbecken vermitteln das Gefühl, in einem modernen Boutique-Hotel zu wohnen. Ein weiteres Highlight: Vom Master-Schlafzimmer haben Sie direkten Zugang zu einer großzügigen Terrasse, die Ihnen einen entspannten Rückzugsort bietet. Zusätzlich stehen drei weitere Räume zur Verfügung, die flexibel als Schlafzimmer oder Büro genutzt werden können, sowie ein weiteres Badezimmer mit Dusche.
Ein besonderes Highlight ist die großzügige, teils überdachte Terrasse mit einem Salzwasser-Pool, der einen atemberaubenden Blick ins Grüne bietet. Der Raum für eine Sauna, der über die Terrasse zugänglich ist, unterstreicht den Wellness-Charakter des Hauses.
Die beheizte Doppelgarage mit hochwertigen Fliesen bietet nicht nur Platz für Fahrzeuge, sondern auch ein stilvolles Ambiente. Technisch ist die Villa bestens ausgestattet: Alle Fenster sind mit Raffstoren versehen, Vorbereitungen für eine Klimaanlage und Wohnraumlüftung wurden getroffen, und eine Alarmanlage, ein BUS-System sowie eine Photovoltaik-Anlage sind bereits vorhanden. Ein Technikraum bietet zusätzlichen Stauraum.
Die dunkle Aluverbund-Fassade verleiht der Villa ihren unverkennbaren Charakter und macht sie zu einem architektonischen Meisterwerk.
Ein Zuhause für alle, die das Besondere suchen.






















