MICHAELNBACH / GRIESKIRCHEN - Traumhafte Einzelhaushälfte
Beschreibung
Diese moderne Neubau-Einzelhaushälfte vereint zeitgemäßes Wohnen, hochwertige Ausstattung und eine ruhige Siedlungslage. Als Erstbezug bietet sie Ihnen ein Wohnambiente, das höchsten Ansprüchen gerecht wird.
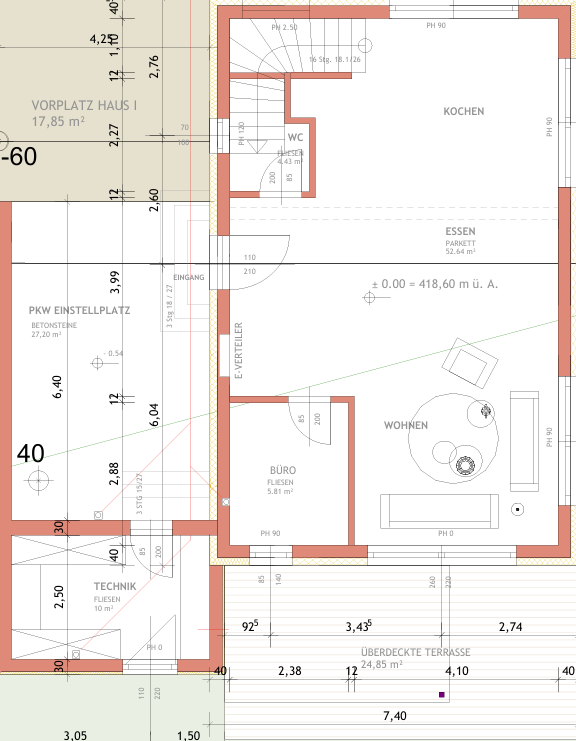
Auf großzügigen ca. 130 m² Wohnfläche, verteilt auf zwei Etagen, genießen Sie durchdachte Raumaufteilung, lichtdurchflutete Räume und eine einladende ca. 25 m² große Terrasse mit angrenzendem Eigengarten von ca. 247 m².
Das Herzstück des Hauses bildet der offen gestaltete Wohn- und Essbereich mit rund 53 m². Großzügige Fensterfronten schaffen hier ein helles, freundliches Ambiente und verbinden den Innenraum harmonisch mit der Terrasse und dem Garten.
Die Ausstattung überzeugt mit edlem Parkett, Fußbodenheizung und effizienter Luftwärmepumpe – eine Kombination aus Eleganz und Nachhaltigkeit. Ein Garagenparkplatz sorgt für zusätzlichen Komfort.
Eingebettet in eine ruhige Siedlungslage genießen Sie hier eine ideale Verbindung aus Privatsphäre, Wohnqualität und der Nähe zu sämtlichen infrastrukturellen Einrichtungen des täglichen Bedarfs.


















