WEIßKIRCHEN - Traumhafter Bungalow
Beschreibung
DIE IMMOBILIE WIRD FERTIG ÜBERGEN – INKL. FASSADE, TERRASSE, POOL UND GARTEN !
Exklusiver Neubau-Bungalow in Weißkirchen – Hochwertige Bauweise trifft modernes Wohnambiente!
In ruhiger und begehrter Siedlungslage von Weißkirchen präsentiert sich dieser außergewöhnliche Neubau-Bungalow in hochwertiger Bauweise mit exklusiver Ausstattung. Auf einem großzügigen Grundstück von ca. 649 m² vereint diese Immobilie modernes Design, durchdachte Architektur und höchsten Wohnkomfort auf einer Ebene.
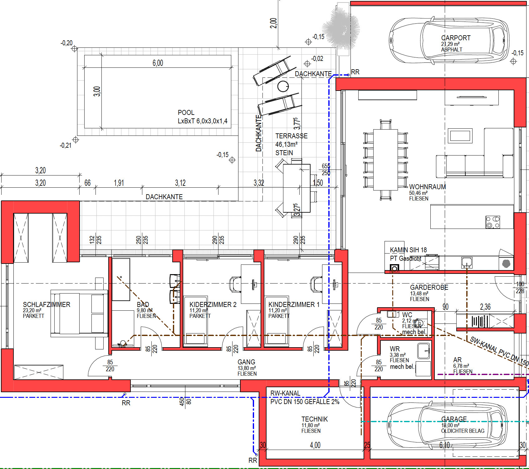
Die Wohnfläche von ca. 145 m² überzeugt durch eine klare, zeitlose Gestaltung und ein offenes Raumkonzept. Herzstück des Hauses ist der beeindruckende, rund 50 m² große Wohn- und Essbereich mit über 3 Meter Raumhöhe und großzügigen Fensterfronten, die für lichtdurchflutete Räume und ein angenehmes Wohngefühl sorgen. Die elegante und hochwertige Einbauküche fügt sich harmonisch in das Gesamtbild ein und erfüllt höchste Ansprüche an Design und Funktionalität.
Der Bungalow verfügt über drei komfortable Schlafzimmer, die ebenfalls durch ihre Helligkeit und ihre direkte Verbindung zum Außenbereich begeistern. Ein besonderes Highlight: Nicht nur vom Wohnbereich, sondern auch von sämtlichen Schlafräumen und dem Badezimmer aus besteht ein direkter Zugang zur großzügigen Terrasse sowie in den liebevoll angelegten Garten – ein Wohnkonzept, das Innen- und Außenbereich nahtlos miteinander verbindet.
Das stilvolle Badezimmer ist hochwertig ausgestattet und bietet sowohl eine Dusche als auch eine Badewanne – ideal für entspannte Momente.
Im Außenbereich erwartet Sie ein 3 x 6 Meter großer Pool, der an warmen Tagen für Urlaubsfeeling im eigenen Zuhause sorgt.
Abgerundet wird dieses attraktive Angebot durch ein Carport, eine Garage sowie einen separaten Technikraum mit zusätzlichem Stauraum.
Diese Immobilie vereint moderne Architektur, hochwertige Ausstattung und eine ruhige Lage zu einem Zuhause mit besonderem Wohnwert – ideal für alle, die stilvolles Wohnen auf einer Ebene in exklusivem Ambiente schätzen.














